Напольные газовые котлы Лемакс
Напольный газовый котел Лемакс
Газовые котлы Лемакс производятся по современным стандартам качества на российском предприятии «Лемакс». Данный завод, расположенный в городе Таганрог, давно зарекомендовал себя как лидер по производству отопительной техники в России. Высокий контроль качества, европейские комплектующие, широкая сервисная сеть и разумная цена на Лемакс, делают котлы данной марки наилучшим и оптимальным вариантом на данный момент. Из напольных газовых котлов этой фирмы, выделяются газовые котлы Лемакс серии Премиум. Расширенная линейка мощностей от 7,5 до 60 кВт позволяет отопить жилые дома площадью до 600 квадратных метров. Самыми популярными моделями котлов являются - лемакс премиум 10, лемакс премиум 12.5 и лемакс премиум 20. Газовые котлы «Премиум» производятся как одноконтурные без приготовления горячей воды, так и двухконтурные. Лемакс одноконтурный маркеруется в названии без буквы «В». Данные газовые аппараты не требуют подключения к электрической сети, то есть являются полностью энергонезависимыми. Минимальный расход газа котлов Лемакс Премиум возможен благодаря оснащению итальянской автоматикой концерна SIT и микрофакельной горелкой POLIDORO. В производстве теплообменников на котлы Премиум используется высококачественная сталь, соответствущая всем российским и международным стандартам качества. В свою очередь, данные цилиндрические теплообменники обрабатываются антикоррозийным составом, что способствует увеличению срока службы газового аппарата. Система безопасности предусматривает наличие системы защиты от перегрева, прерывания тяги, сажеобразования, а также от задувания котла.
В семействе напольных газовых котлов Лемакс со стальным теплообменником присутствуют модели:
- Лемакс серии «Премиум» (7.5 кВт до 60 кВт)
- Лемакс серии «Премиум» (70 кВт до 100 кВт)
- Лемакс серии «Премиум» N
Преимущества стальных газовых котлов Лемакс серии «Премиум»
- Расширенная линейка мощностей от 7,5 до 60 кВт
- Котел не требует подключения к электрической сети
- Оснащение оригинальными компонентами газогорелочного устройства и газовым клапаном итальянского концерна «SIT», а также инжекционной микрофакельной горелкой «POLIDORO»
- Наличие системы защиты от перегрева, прерывания тяги, сажеобразования, а также от задувания котла
- Удобство чистки котла за счет применения съемной верхней панели
- Усовершенствованная система защиты безопасности (установлен датчик перегрева теплообменника)
- Максимальный КПД за счет:
- увеличения площади теплообмена
- изменения конструкции турбулизатора для максимальной задержки отходящих газов
- Увеличение первичного и вторичного притока воздуха
- Функция горячего водоснабжения (от 12,5 - 40 кВт)
- Возможность перехода на сжиженный газ
- Гарантия 3 года
Конструктивные особенности котлов Лемакс «Премиум» N
- Автоматика 820 Sit NOVA
- Регулятор температуры вынесен на переднюю панель котла с обозначением температур, что позволяет точно выбрать оптимальный тепловой режим
- Подсоединение комнатного термостата, при помощи которого можно регулировать температуру котла относительно температуры внутри помещения
- Работа совместно с турбонасадкой «Лемакс» серии «Comfort» для принудительного отвода отработанных газов
- Система плавного запуска
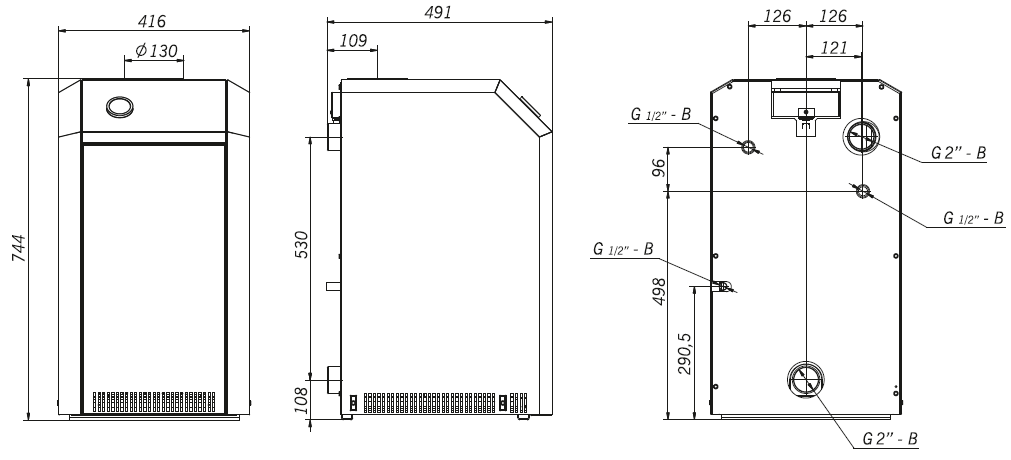
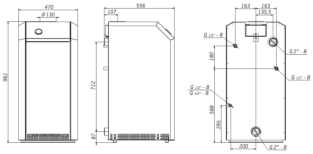
Габаритные и присоединительные размеры котлов Лемакс «Премиум»
Премиум 7.5; Премиум 10

Премиум 12.5; Премиум 16

Премиум 20; Премиум 25; Премиум 30

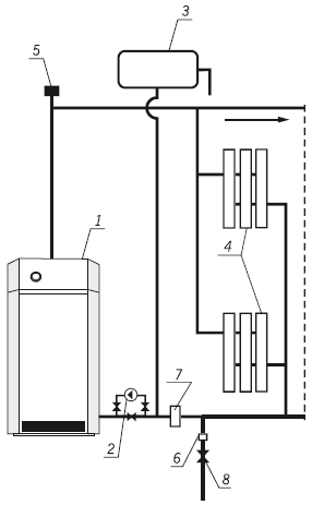
Монтаж котла Лемакс «Премиум»

Схема 1. 1) котел, 2) циркуляционный насос, 3) расширительный бак, 4) радиаторы отопления, 5) автоматический сбросник воздуха, 6) сбросной предохранительный клапан, 7) шлакоотделитель, 8) кран для заполнения и слива системы отопления.
Наш интернет-магазин газового оборудования «ГазТеплоТорг» предлагает лучшие цены на котлы Лемакс Премиум. На складе постоянно поддерживается и пополняется большой ассортимент котлов Лемакс. Дополнительно к газовому котлу наши консультанты помогут подобрать дымоход, циркуляционный насос, группу безопасности и расширительный бак.
Вы можете купить котлы Лемакс Премиум в наших магазинах по адресам:
г. Энгельс, пгт. Приволжский, ул. Гагарина, 21.
г. Саратов, ул. Соколовая, 309/9
г. Энгельс, ул. Нестерова, 100
Приобрести газовые котлы Лемакс также возможно в кредит или рассрочку без переплат. Действуют скидки определенным группам лиц (ветераны, участники боевых действий, пенсионеры, постоянные клиенты, монтажники)
Сделать онлайн заказ на нашем официальном сайте котлов Лемакс и по электронной почте. Заводская гарантия качества и доставка по Саратовской области.
Телефон в Энгельсе +7 (8453) 71-25-38;
Телефон в Саратове +7 929 770-11-55;
Телефон менеджера интернет-магазина: +7 909 33-77-699.
